Trong xu hướng kiến trúc hiện đại, cửa trượt nhôm kính cao cấp đang trở thành lựa chọn hàng đầu cho các công trình nhà ở, biệt thự và dự án thương mại. Hệ Apexfine – cửa trượt cao cấp được thiết kế nhằm mang đến sự kết hợp hoàn hảo giữa tính thẩm mỹ sang trọng, độ bền vượt trội và khả năng vận hành êm ái.
Nhờ cấu trúc nhôm chắc chắn cùng hệ phụ kiện đồng bộ, dòng cửa trượt này giúp tối ưu diện tích sử dụng, mở rộng tầm nhìn và tạo nên không gian sống thoáng đãng, sang trọng
Thiết kế hiện đại – Tối ưu không gian sống
Hệ cửa trượt Apexfine sở hữu thiết kế tối giản nhưng tinh tế, phù hợp với nhiều phong cách kiến trúc khác nhau từ hiện đại đến cao cấp.
Với cơ chế đóng mở trượt ngang, cửa không chiếm diện tích khi vận hành, giúp:
-
Tăng diện tích sử dụng trong nhà
-
Tối ưu ánh sáng tự nhiên
-
Mở rộng tầm nhìn ra không gian bên ngoài
Đây là giải pháp lý tưởng cho các vị trí như:
-
Cửa đi ra ban công
-
Cửa thông phòng
-
Cửa sân vườn
-
Cửa mặt tiền biệt thự
Khả năng vận hành êm ái – bền bỉ theo thời gian
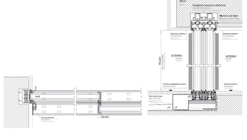
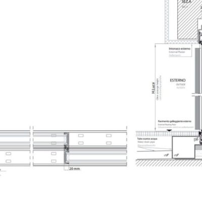
Một trong những ưu điểm nổi bật của hệ cửa trượt Apexfine là khả năng vận hành mượt mà và ổn định.
Nhờ sử dụng hệ ray trượt và bánh xe chất lượng cao, cửa có thể đóng mở nhẹ nhàng, hạn chế tiếng ồn và đảm bảo độ bền lâu dài trong quá trình sử dụng.
Ngoài ra, cấu trúc nhôm chắc chắn giúp cửa có khả năng chịu lực tốt, phù hợp với các bộ cửa có kích thước lớn.
Một trong những ưu điểm nổi bật của hệ cửa trượt Apexfine là khả năng vận hành mượt mà và ổn định.
Nhờ sử dụng hệ ray trượt và bánh xe chất lượng cao, cửa có thể đóng mở nhẹ nhàng, hạn chế tiếng ồn và đảm bảo độ bền lâu dài trong quá trình sử dụng.
Ngoài ra, cấu trúc nhôm chắc chắn giúp cửa có khả năng chịu lực tốt, phù hợp với các bộ cửa có kích thước lớn.

Hiệu suất cách âm – cách nhiệt hiệu quả
Cửa trượt Apexfine được thiết kế với hệ gioăng kín khít và khả năng kết hợp nhiều loại kính như:
-
Kính cường lực
-
Kính dán an toàn
-
Kính hộp cách âm cách nhiệt
Nhờ đó, hệ cửa mang lại nhiều lợi ích:
✔ Giảm tiếng ồn từ môi trường bên ngoài
✔ Hạn chế thất thoát nhiệt
✔ Tăng hiệu quả tiết kiệm năng lượng cho công trình
Đây là yếu tố quan trọng đối với các công trình đô thị hoặc khu vực có mật độ giao thông cao.
Cửa trượt Apexfine được thiết kế với hệ gioăng kín khít và khả năng kết hợp nhiều loại kính như:
-
Kính cường lực
-
Kính dán an toàn
-
Kính hộp cách âm cách nhiệt
Nhờ đó, hệ cửa mang lại nhiều lợi ích:
✔ Giảm tiếng ồn từ môi trường bên ngoài
✔ Hạn chế thất thoát nhiệt
✔ Tăng hiệu quả tiết kiệm năng lượng cho công trình
Đây là yếu tố quan trọng đối với các công trình đô thị hoặc khu vực có mật độ giao thông cao.


Tính thẩm mỹ cao cho công trình kiến trúc
Không chỉ đảm bảo yếu tố kỹ thuật, hệ cửa trượt Apexfine còn tạo điểm nhấn nổi bật cho công trình.
Bề mặt nhôm được xử lý bằng công nghệ sơn tĩnh điện hoặc anodizing giúp:
-
Chống ăn mòn và oxy hóa
-
Giữ màu sắc bền đẹp theo thời gian
-
Tăng độ sang trọng cho tổng thể kiến trúc
Các màu sắc phổ biến thường được lựa chọn gồm:
-
Đen mờ sang trọng
-
Xám ghi hiện đại
-
Vân gỗ cao cấp
-
Trắng tinh tế
Baudoor cam kết
Với kinh nghiệm nhiều năm trong lĩnh vực cửa nhôm kính cao cấp, công ty cam kết mang đến cho khách hàng những sản phẩm Apexfine chính hãng với chất lượng vượt trội. Tất cả các sản phẩm đều được lựa chọn từ nguồn vật liệu đạt tiêu chuẩn cao, kết hợp cùng hệ phụ kiện đồng bộ nhằm đảm bảo độ bền, độ an toàn và khả năng vận hành ổn định theo thời gian.
Bên cạnh chất lượng sản phẩm, công ty còn chú trọng đến quy trình tư vấn – thiết kế – thi công – bảo hành chuyên nghiệp, giúp khách hàng hoàn toàn yên tâm trong suốt quá trình sử dụng. Mỗi công trình không chỉ là một sản phẩm, mà còn là cam kết về uy tín, trách nhiệm và giá trị bền vững mà chúng tôi mang đến cho khách hàng.
Chúng tôi luôn nỗ lực không ngừng để mang lại giải pháp cửa nhôm kính hiện đại, thẩm mỹ và tối ưu nhất, góp phần kiến tạo nên những không gian sống đẳng cấp và tiện nghi.
Liên hệ Ponzio Việt Nam: 0947.426.889




Đánh giá
Chưa có đánh giá nào.